Fecha: Septiembre, 2022
Ubicación: Mérida, Yucatán, México
Superficie de terreno: 250 m²
Superficie de construcción: 239 m²
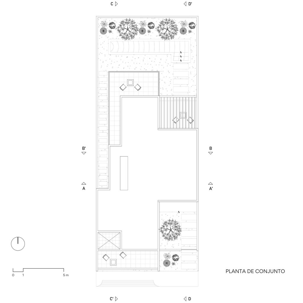
El proyecto se encuentra en un terreno de 250 m² (10x25mts) con orientación norte-sur, es una residencia unifamiliar moderna con espacios de cochera, patio recibidor, cocina, sala-comedor en doble altura, medio baño, terreza, canal de nado, recámara principal con clóset vestidor y baño completo, cuarto de lavado y 2 recámaras secundarias con balcón, clóset y baño completo compartido.
Se aprovechó la orientación para colocar amplios ventanales hacia el norte, que logran iluminar por completo los espacios de manera natural sin recibir incidencia solar directa. Todas las habitaciones contienen dos aberturas para asegurar una correcta ventilación cruzada.
Presenta una materialidad sencilla, la principal intención fue utilizar un acabado de estuco realizado a base de tierra local (de ahí el nombre del proyecto) para diferenciar el basamento del primer nivel con los volúmenes blancos de la segunda planta.
Recorrido Virtual
Renders
Planos
